top of page

Mixed-use Urban Renewal Moria Str., Ariel, Israel
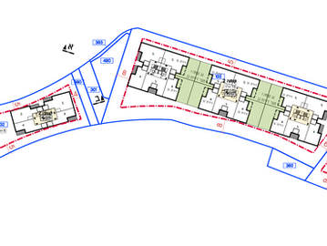
The urban renewal project in the city of Ariel, adjacent to the municipal university, proposes planning and development principles for the evacuation of 67 existing residential units in several old residential buildings. In their place, the construction of 6 new multi-story buildings is planned, totaling 540 residential units. Additionally, there are designated areas for commerce, offices, public buildings, and underground parking. Public open spaces have also been allocated, along with pedestrian walkways.
Residential areas – 94, 500 sq. m
Commercial areas – 4, 200 sq. m
Public build areas – 2, 000 sq. m
Models and Photo
Drawings
Sketches
Facts and Figures
Completion Year
2023
Area
100, 700 SQ. M
More Projects
bottom of page








































